Project Details
Architectural Drawings
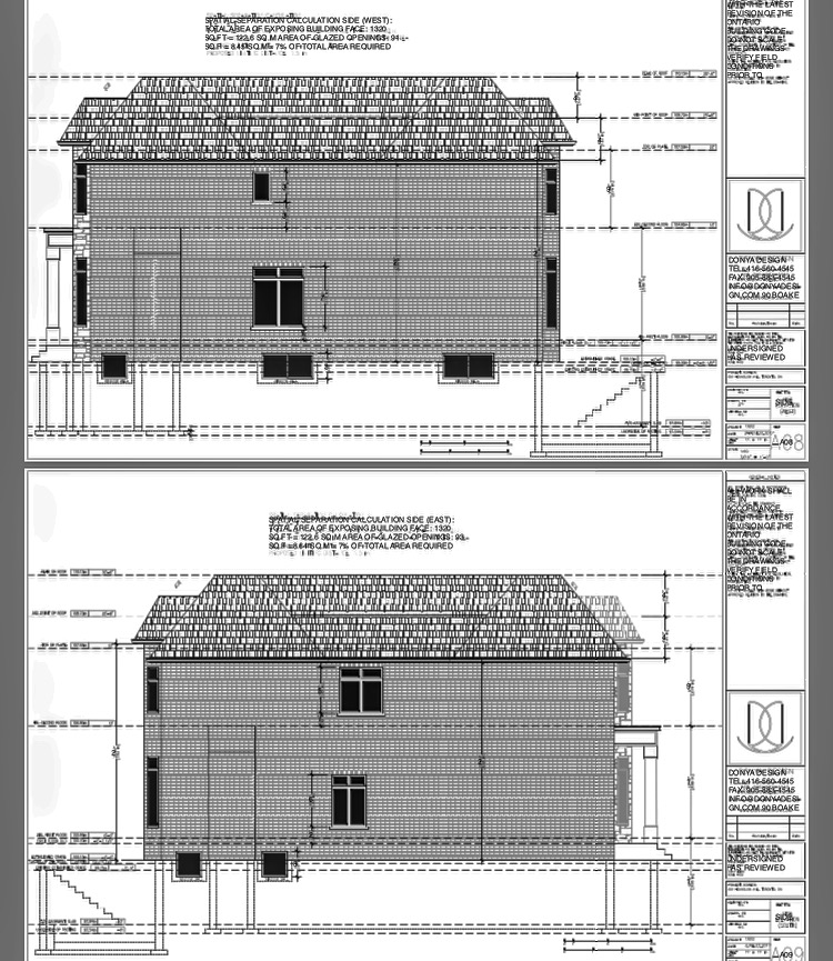
Designing and drawings done by Donya Design in oerder to get permit from the city.
- ARCHITECTURAL DESIGN: Donya Design
- PLANNING-DRAWING : Donya Design
- PROPERTY TYPE : Residential
- LOCATION : Toronto, Ontario
Designing and drawings done by Donya Design in oerder to get permit from the city.